Návrh a realizace


 

Bytové jádro I.

zobrazit jako prezentaci

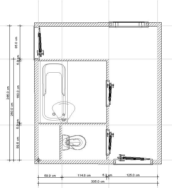
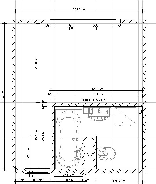
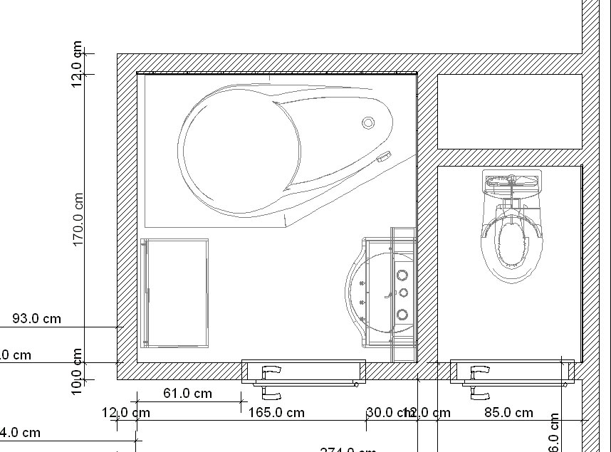
původní stav


 

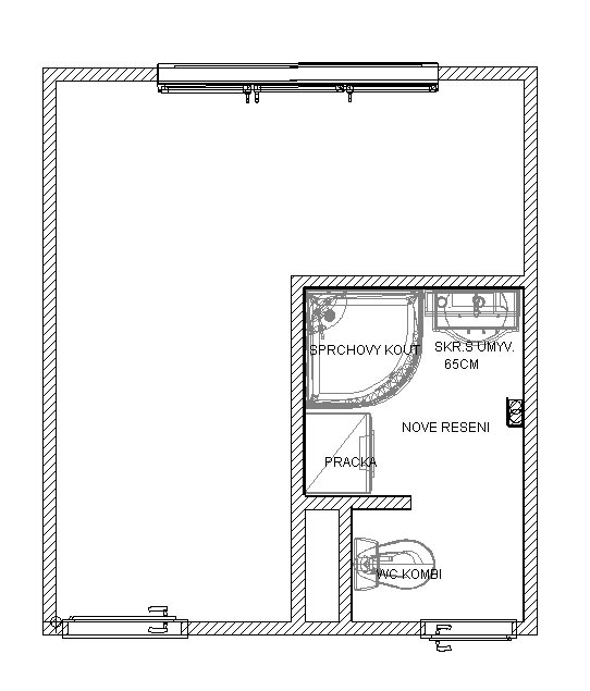
návrh rekonstrukce - varianta 1


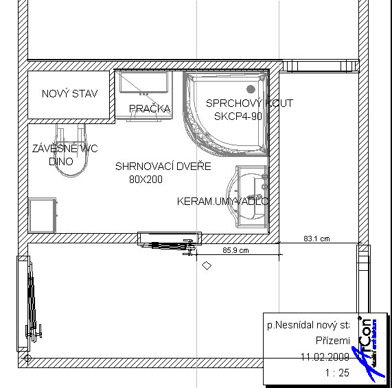
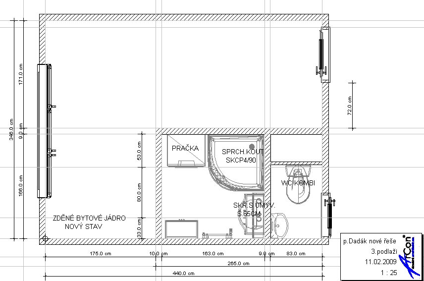
 příklad realizace- varianta 1


návrh rekonstrukce - varianta 2

 

příklad realizace - varianta 2



Bytové jádro II.

zobrazit jako prezentaci

původní stav

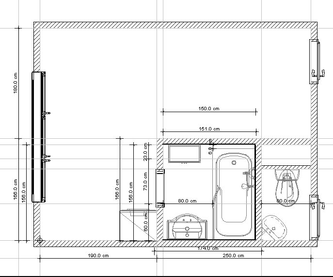
návrh rekonstrukce

příklad realizace



Malé jádro

zobrazit jako prezentaci

původní stav

 

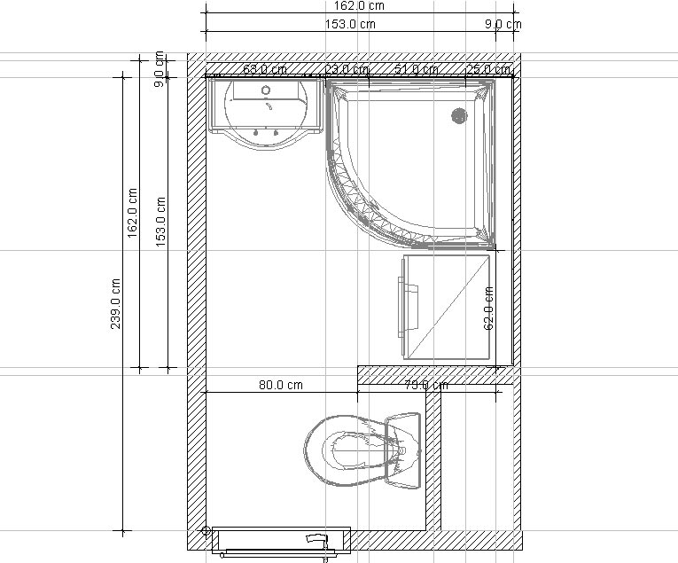
návrh rekonstrukce - sprcha

příklad realizace - sprcha


návrh rekonstrukce - vana

příklad realizace - vana



Průchozí jádro I.

zobrazit jako prezentaci

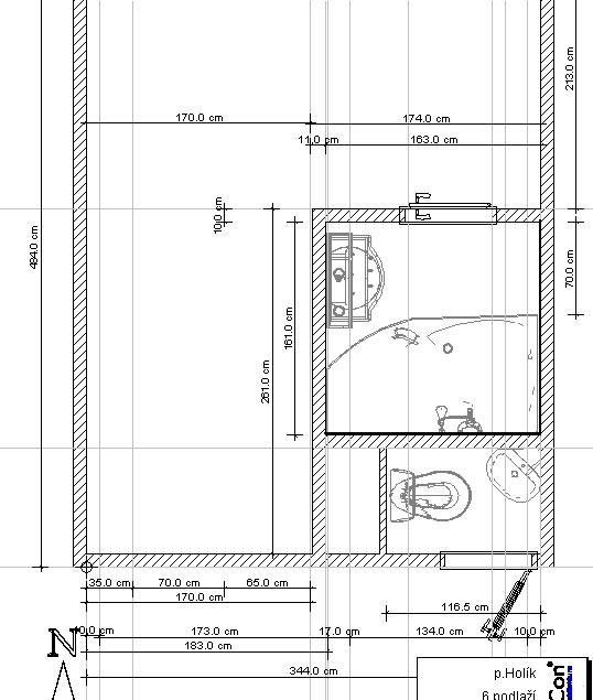
původní stav

návrh rekonstrukce - varianta 1


příklad realizace - varianta 1


návrh rekonstrukce - varianta 2


příklad realizace - varianta 2


návrh rekonstrukce - varianta 3


příklad realizace - varianta 3



Průchozí jádro II.

zobrazit jako prezentaci

původní stav

návrh rekonstrukce - varianta 1


příklad realizace - varianta 1


návrh rekonstrukce - varianta 2


příklad realizace - varianta 2


návrh rekonstrukce - varianta 3

příklad realizace - varianta 3